46246 S Shore Pl, Hartford, SD 57033
Toggle Navigation
Images
Videos
Floor Plans
Map
46246 S Shore Pl
Hartford, SD 57033
Scroll to Content
Images
Slideshow
Photo Grid
Hide
Previous
Next
Show more
Videos
Walkthrough
Social
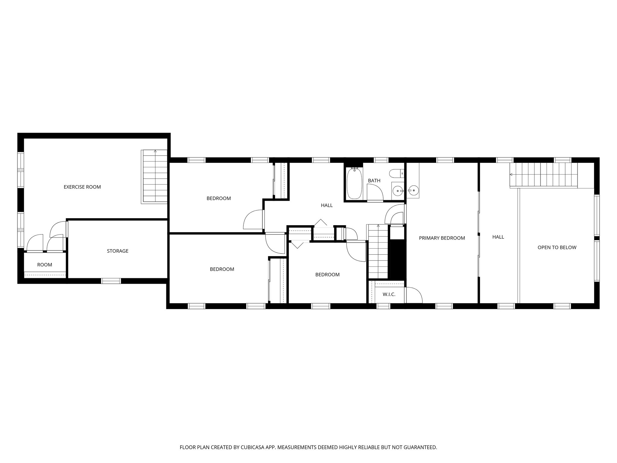
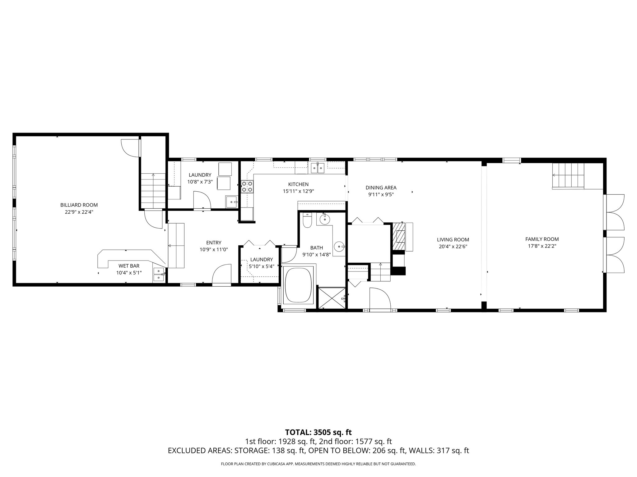
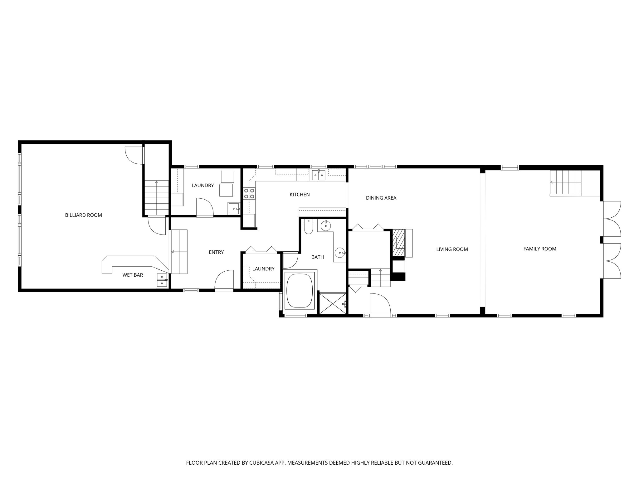
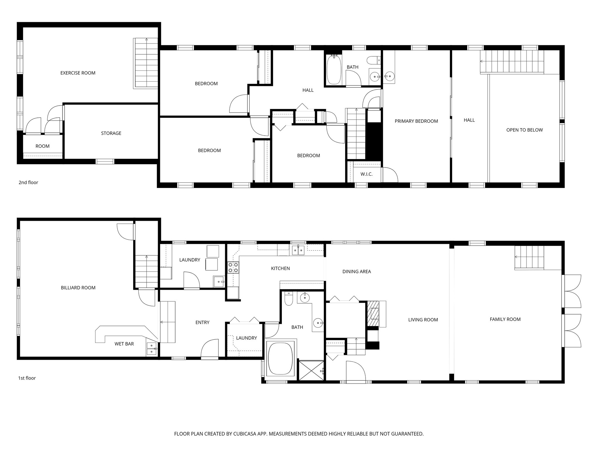
Floor Plans
Slideshow
Photo Grid
Hide
Previous
Next